كتاب المسجد النبوي عبر التاريخ
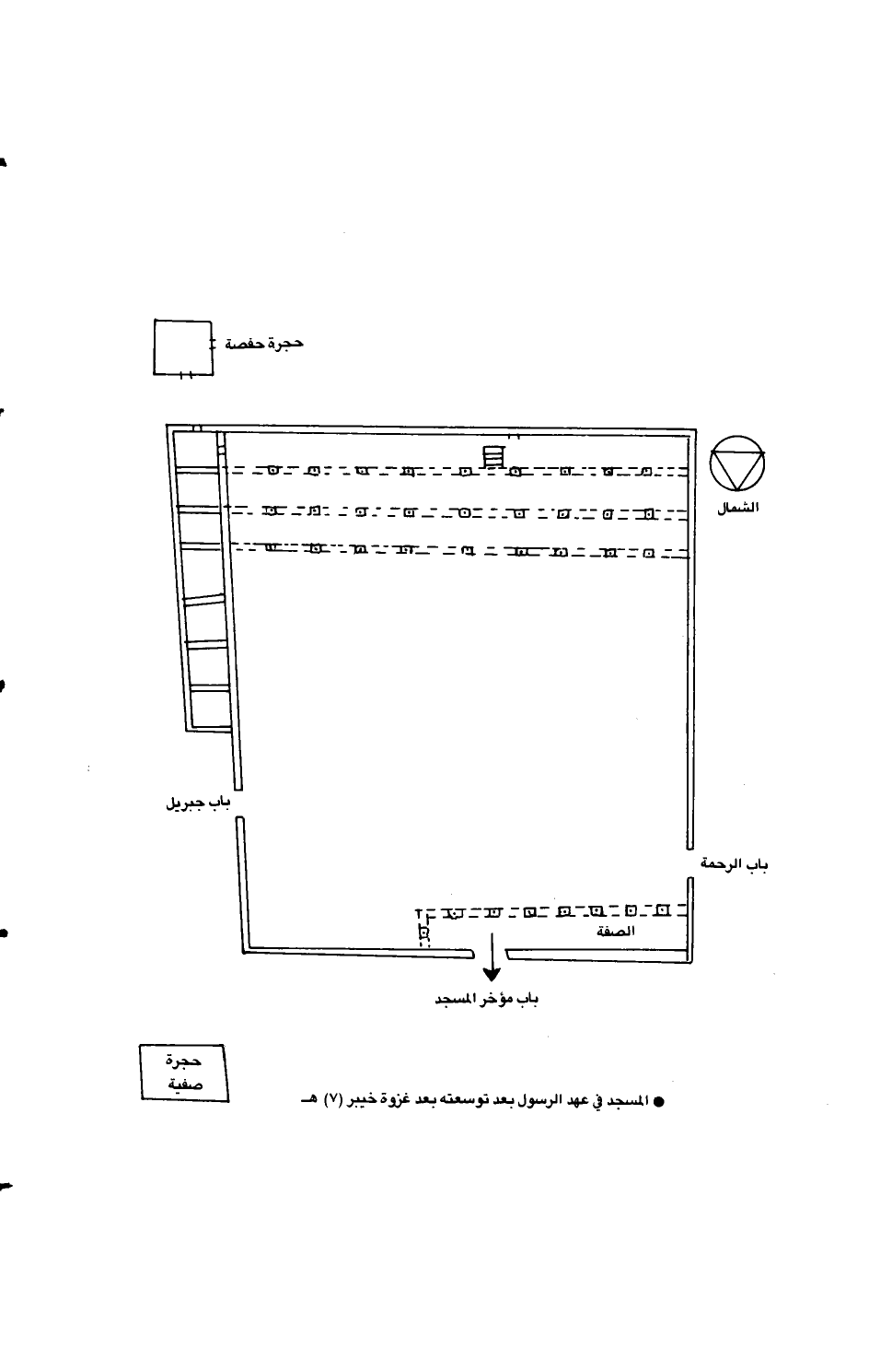
*المسجد في عهد الرسول بعد توسيعه بعد غزوة خيبر (7) هـ
الصفحة 36
216